90后小伙装47㎡二手房成赤贫风,父母看后以为走错门

Kommentarer · 4 Visningar

中午正和同事一起吃饭,一个陌生的电话号码打到我手机上,起初以为是推销或卖保险的,接通电话后停顿5秒没有说话,突然对方叫我名字,我才知道是一位N久没联系的远方亲戚。一阵寒暄之后,说明来意:买了一套100

  中午正和同事一起吃饭,一个陌生的电话号码打到我手机上,起初以为是推销或卖保险的,接通电话后停顿5秒没有说话,突然对方叫我名字,我才知道是一位N久没联系的远方亲戚。一阵寒暄之后,说明来意:买了一套100多㎡的房子,刚签的协议,能感受到兴奋、激动的心情。因为不知道现在流行什么样的装修,怎样合理利用每1㎡面积和最先进的设备,要我帮他看看,随便设计设计。听到“随便设计设计”,我再也没有心情继续就餐,每年做了很多随便设计设计的项目,都不知道死了多少脑细胞,还常常让自己陷入尴尬的境地。做好了从此杳无音信,不满意就成为家族罪人,你们有遇到这样的事情吗?遇到了,又如何解决呢?

  今天介绍的案例是父母在一线城市,给大学刚毕业的儿子买了一套47㎡二手房,本就不宽裕的家庭全款买房后已经捉襟见肘,装修事宜只能看他自己解决。入住后父母去看装修效果,居然认为走错门,到底是怎么回事呢?接下来我们一起去看看吧!

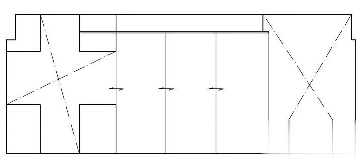
  原始结构图

  

  刚工作收入有限,为了能尽快入住,节省租房费用,只能找人“随便设计设计”,定制好家具后,叫两个工人一起安装。装修效果像极了最近网络很流行的“赤贫风”,功能齐全,很实用。上图为拆除非承重墙后的结构图。

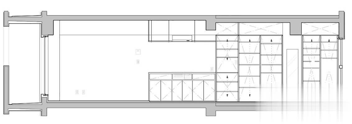
  平面布置图

  

  房屋套内面积为47㎡,原来是两室户的格局,小伙现在单身,只要满足放置一张床的私密空间就可以了。要浴缸,要多多的鞋柜,还要留出光线最好的地方作为多功能空间。因为朋友很多,精彩办party,毕竟是90后,好任性。

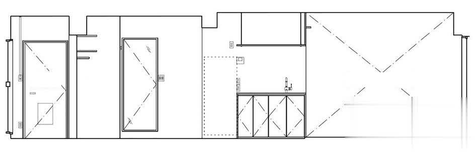
  玄关

  

  拆除了前屋主的老旧装修,墙面上留下了斑斑点点的痕迹,设计师认为这是一种另类的美,最重要的是省钱,与白色的新窗户形成鲜明对比。墙面利用原来的打孔洞,安装挂钩和层板,放置小件物品和包包,甚至吸尘器都上墙,不占地面空间。对于鞋控来说,多少鞋柜都不够放。

  厨房

  

  通过玄关一排储物柜,就是厨房。从玄关延伸过来的地面,只是做了简单的找平后刷米白色地面漆,符合整个空间的装修风格。一个住,以外卖为主,原木色橱柜搭配拉丝不锈钢台面,倒是干净整洁。

  

  全屋没有吊顶,镀锌铁管安装在原建筑结构上,从布管走向,能看出电工的用心,彰显出业主追求简单不简陋的生活品质。

  开放式区域

  

  

  餐厅紧邻厨房,靠近阳台,可折叠餐桌搭配四把藏青色餐椅,和满铺的实木拼花地板,给空间注入一股生活的烟火气。只能容纳一张床的卧室设置在厨房背面,业主坚持隔板到顶,要隔音要挡光线,忙碌一天的工作后,需要一个绝对静谧的睡眠环境。(上方的小板有开孔,方便空气对流。)

  

  拉上移门,隔绝了外面世界的喧嚣,一心一意编织属于自己的未来梦。

  

  

  不想呆卧室里睡觉,可以换到硕大的吊床上,小户型的房子也可以有度假的浪漫感。

  

  在卧室斜对面,业主添加了一组方格柜,放置常用物品,以保持整个空间的整洁不凌乱。

  

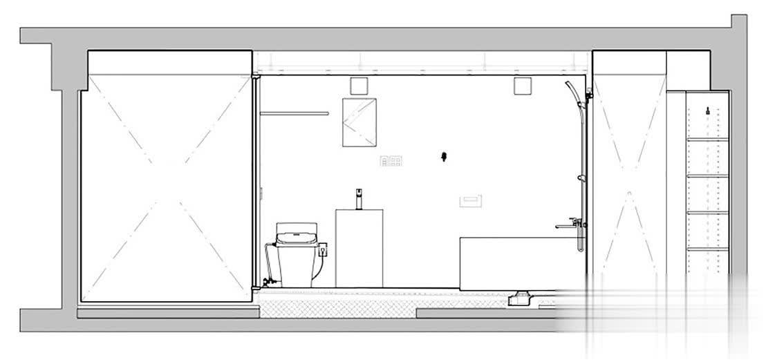
  方格柜的对面是卫生间,从面积上就可以看出业主的不将就,马桶、洗脸盆、洗衣机和浴缸有序排放。墙面和天花采用白色防水漆,在暖光灯的渲染下,呈现出温暖又舒适的景象。另一个磨砂玻璃门通往玄关,方便进出。

  

  

  

  

  

  

  最后是随便画画的立面图,供大家欣赏。

Kommentarer
会员免费服务:时刻音乐 时刻云盘 时刻工具箱 时刻标签 GitHub加速 时刻工具